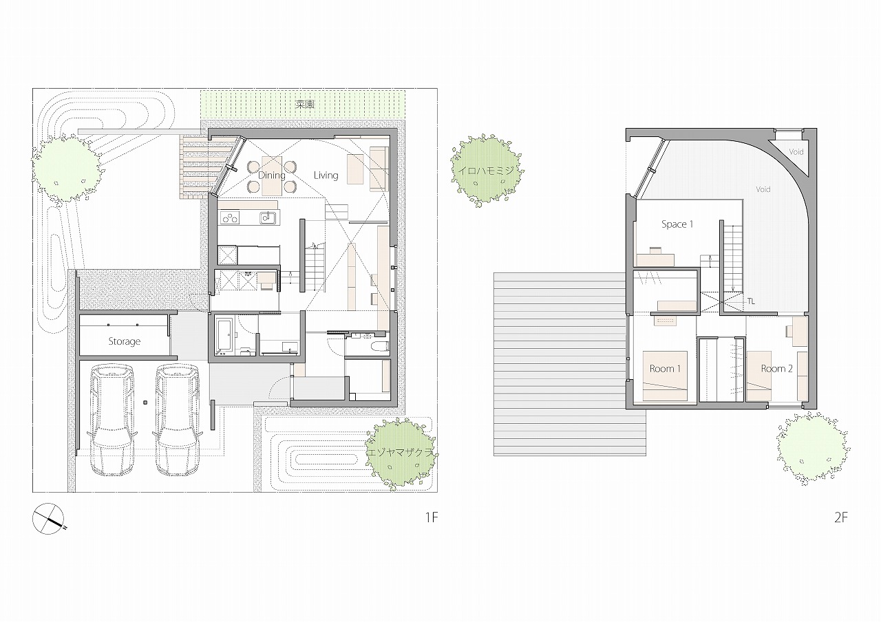
2010年 札幌市厚別区 40坪・133㎡ 撮影:佐藤文昭 二層分の大きな縦長の窓から入ってくる光が、湾曲した壁に導かれるように奥へ奥へと入り込む様は、音楽が奏でられるように微細に変化しながら、室内に導かれる光のようすに敏感となり、時間の経過や季節の移ろいなどの変化を身近に感じることにもつながっている。